Type 3R (Drip Shield), Products
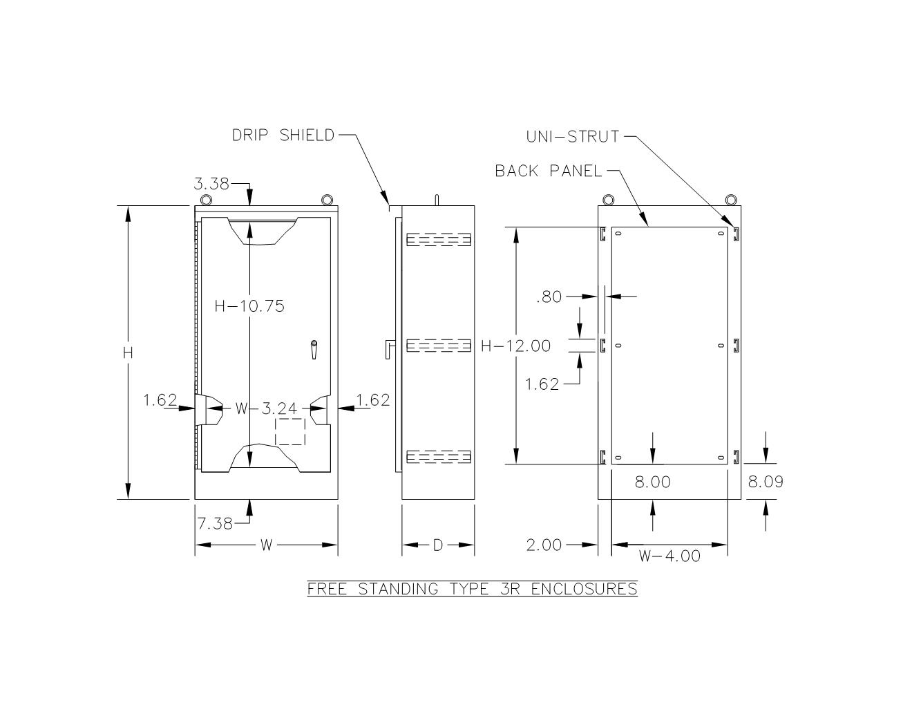
TYPE 3R FREESTANDING SINGLE DOOR HINGED ENCLOSURE
Construction:- UNI-STRUT OR STUDS PROVIDED FOR MOUNTING OPTIONAL PANEL
- OIL-RESISTANT DOOR GASKET
- LIFTING EYES FOR EASY HANDLING
- 12 GAUGE PAINT GRIP GALVANNEAL STEEL
- SEAMS CONTINUOUSLY WELDED AND GROUND SMOOTH
- LATCH RODS HAVE ROLLERS FOR EASIER DOOR CLOSING
- HEAVY GAUGE CONTINUOUS HINGE
- PRINT POCKET
- 3 POINT LATCHING MECHANISM OPERATED BY KEYLOCKING / PADLOCKING L-HANDLE
- ANSI 61 GRAY POLYESTER POWDER COATING INSIDE AND OUT OVER PAINT GRIP GALVANIZED STEEL
Outdoor use to provide a degree of protection against falling rain; undamaged by the formation of ice on the enclosure.
Select your size
Stock: —
Lead time: —
SKU: FRE
Categories: Type 3R (Drip Shield), Products
For large quantities or custom sizes call factory
| Enclosure Size HxWxD | Catalog Number | Weight | UPC_12Digit |
|---|---|---|---|
| 72x24x18 | F722418RE | 234 lbs | |
| 72x30x18 | F723018RE | 269 lbs | |
| 72x36x18 | F723618RE | 304 lbs | |
| 90x36x20 | F903620RE | 406 lbs | |
| 72x24x24 | F722424RE | 270 lbs | |
| 72x30x24 | F723024RE | 307 lbs | |
| 72x36x24 | F723624RE | 344 lbs | |
| 90x36x24 | F903624RE | 415 lbs | |
| 72x24x30 | F722430RE | 306 lbs | |
| 72x36x30 | F723630RE | 385 lbs | |
| 72x24x36 | F722436RE | 342 lbs | |
| 72x36x36 | F723636RE | 425 lbs |
Related products
-
TYPE 3R PAINTED DOUBLE DOOR FLOOR MOUNT ENCLOSURE
MORE DETAILS This product has multiple variants. The options may be chosen on the product page -
PAINTED WHITE PANEL FOR FREESTANDING ENCLOSURE
MORE DETAILS This product has multiple variants. The options may be chosen on the product page -
TYPE 3R PAINTED HINGED COVER ENCLOSURE WITH KEYLOCKING WING KNOB
MORE DETAILS This product has multiple variants. The options may be chosen on the product page -
TYPE 3R PAINTED DOUBLE DOOR WALL MOUNT HINGED COVER ENCLOSURE WITH PADLOCKING HANDLE
MORE DETAILS This product has multiple variants. The options may be chosen on the product page








