Disconnect
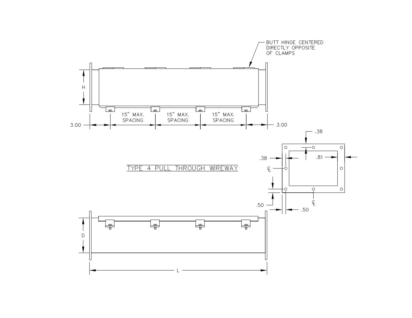
TYPE 4 PAINTED HINGED JIC PULL THRU WIREWAY
Construction:- SCREW CLAMPS ARE QUICK AND EASY TO OPERATE
- BUTT HINGES
- GASKET POSITIONED BETWEEN FLANGES WHEN SECTIONS AND FITTINGS ARE BOLTED TOGETHER
- OIL RESISTANT GASKET
- SEAMS CONTINUOUSLY WELDED AND GROUND SMOOTH
- 12 GAUGE STEEL END FLANGES
- CODE GAUGE PAINT GRIP GALVANIZED STEEL
- ANSI 61 GRAY POLYESTER POWDER COATING INSIDE AND OUT OVER PAINT GRIP GALVANIZED STEEL
Either indoor or outdoor use to provide a degree of protection against falling rain, splashing water, hose directed water; undamaged by the formation of ice on the enclosure.
SKU: PTN4
Category: Disconnect
For large quantities or custom sizes call factory
Downloads
| Wireway Size LxHxD | Catalog Number | Weight | UPC_12Digit |
|---|---|---|---|
| 119x4x4 | 10-44PN4 | 49.01 lbs | |
| 12x6x6 | 1-66PN4 | 9 lbs |








